top of page
Brook Lane, Thetford
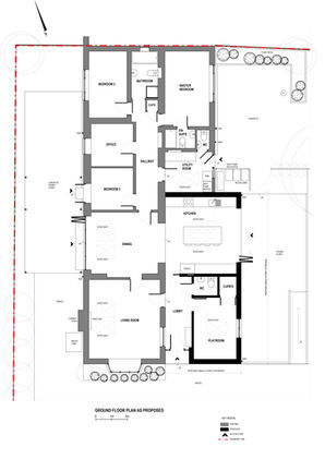
The property is an existing three-bedroom bungalow located in Brookville, near Thetford Forest. Our client's intention was to extend the property to create a playroom for the new family members, a spacious, bright, and modern kitchen, along with internal alterations to enhance and optimize the overall layout.
The choice of materials, such as timber cedar cladding, was intended to give a contemporary look to the existing property and harmonize with the lush green surroundings.
In summary, the proposed extension, following our client's brief, has provided the growing family with the additional space they needed to enhance their quality of life.
bottom of page




