top of page
St Marys Park, Royston
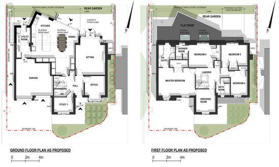
This project involves a single-storey rear extension and internal alterations to an existing property located at Saint Marys Park, Royston. The proposed design aims to create a new Open Plan Kitchen/Dining area, a Utility room, and additional ancillary space.
The design of the extension incorporates features such as large rooflights and sizable sliding folding doors, which serve to maximize natural light within the interior and enhance the connection between the indoor space and the rear garden. Additionally, the use of external timber cladding contributes to the project's overall aesthetics, providing a natural and environmentally friendly appearance.
bottom of page




